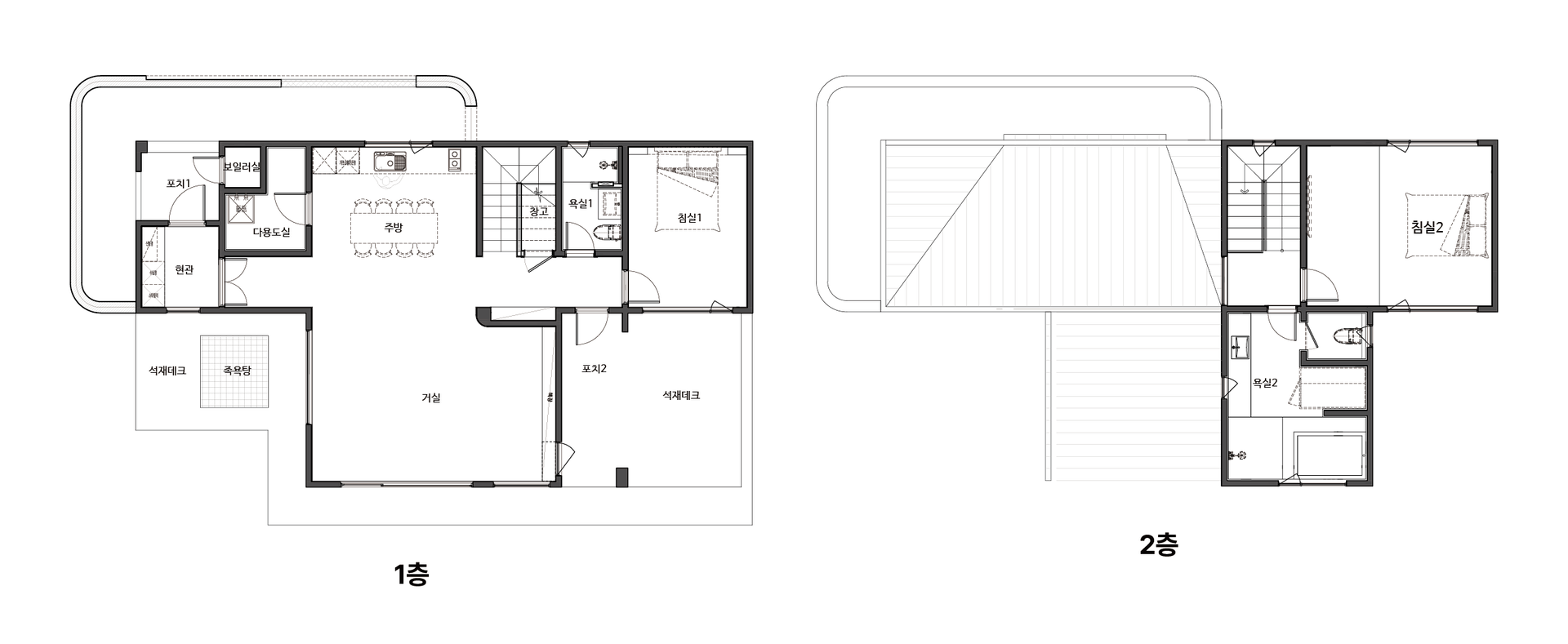
| 경기도 용인시 공세동 주택
.
| 44평 / 복층
공간 구성
거실 / 주방 / 욕실2 / 침실2 / 다용도실 / 포치
| 면적 | 145.97㎡ / 44.15PY |
| 1층 면적 | 96.80㎡ / 29.28PY |
| 2층 면적 | 49.17㎡ / 14.87PY |
| 석재데크 | 56.92㎡ / 17.22PY |
| 포치1 | 4.62㎡ / 1.40PY |
| 포치2 | 8.05㎡ / 2.44PY |
| 대지 위치 | 경기도 용인 |
| 구조 | 경량목구조 |
| 지붕재 | 징크 |
| 외장재 | 스타코플렉스 |
| 단열재 | 아이씬 연질폼 |
| 창호 | 살라만더 시스템 창호 1등급 |
| 외관





